Facebook Pixel image

Design
Changes?

When it comes to re-designing your Paal kit home, you are only limited by your imagination.

 

Design changes are very easy to make as there are no internal load bearing walls, the external steel frame supports the roof.

Feel free to move walls around, change windows, re design the kitchen and bathroom areas, it’s all possible.

Extensions to the home are also easily made to include larger living spaces, adding garages, Alfresco’s or extending verandahs.

Choose from one of our designs, change anything to better suit your needs or ask for our design experts to help.
You will be surprised by the endless possibilities.

Your nearest Paal Design Consultant is there to help at every step of the design process.
Contact them today and see how easy it can be.

 

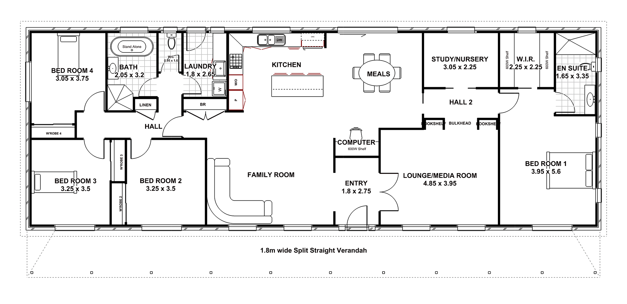
Example

Alison and David Lilly started with the standard Elizabeth design and with the assistance of Paal’s Housing Design Consultant, they added, changed, and modified the plan to create their dream home. Read their story

Original Design of PAAL's Elizabeth Floorplan