Facebook Pixel image

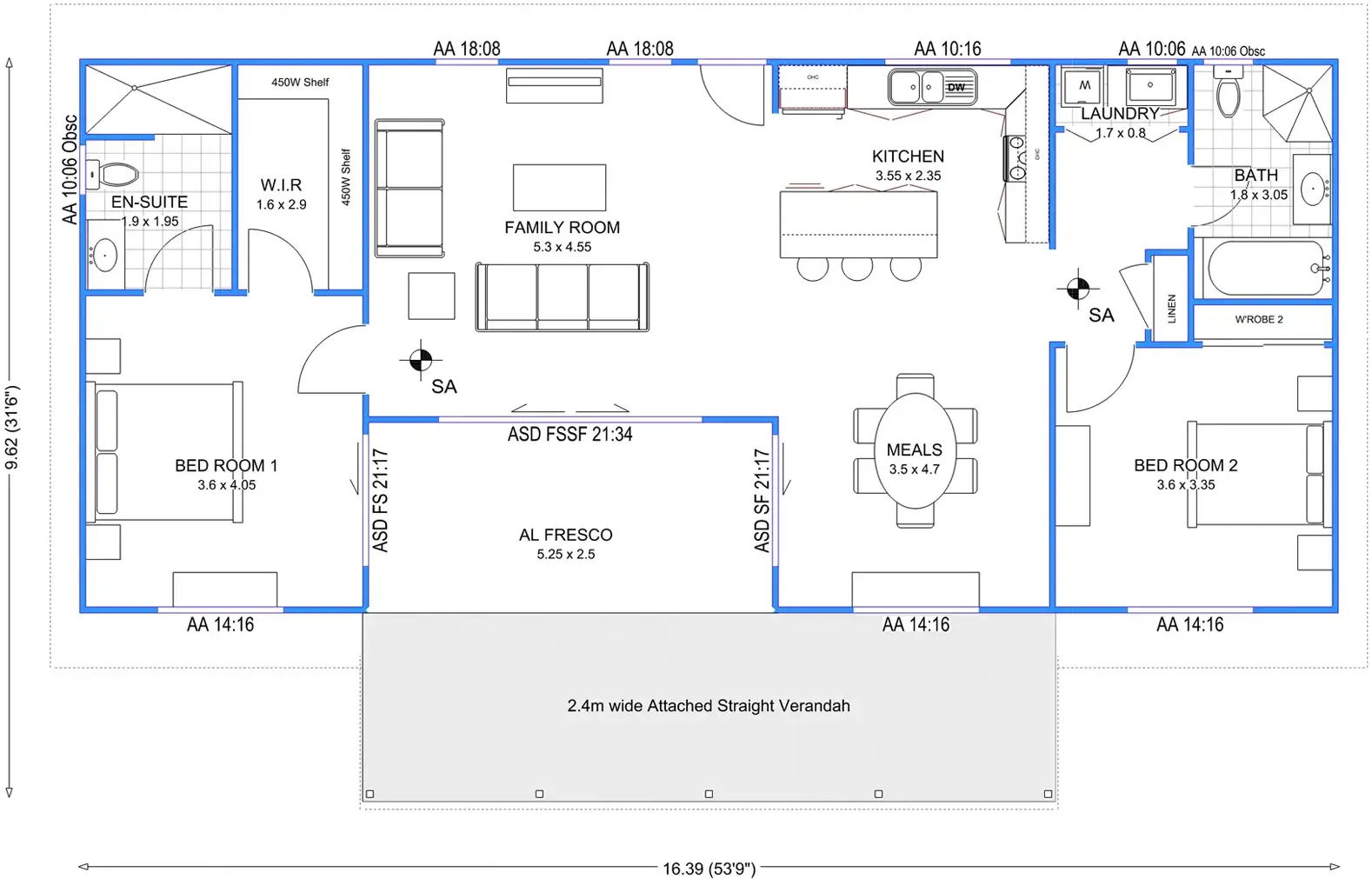
The Barclay

Spacious Two Bedroom

A roomy two-bedroom home with a central living area and alfresco. It is a generously equipped smaller home for those who only require two bedrooms but do not wish to compromise on comfort.

 

2 Bedrooms

Under Roof Area 158.5m²

Ceiling Height 2.55m

Roof Pitch 22.5°

$140,760 Standard Price
Including GST