Facebook Pixel image

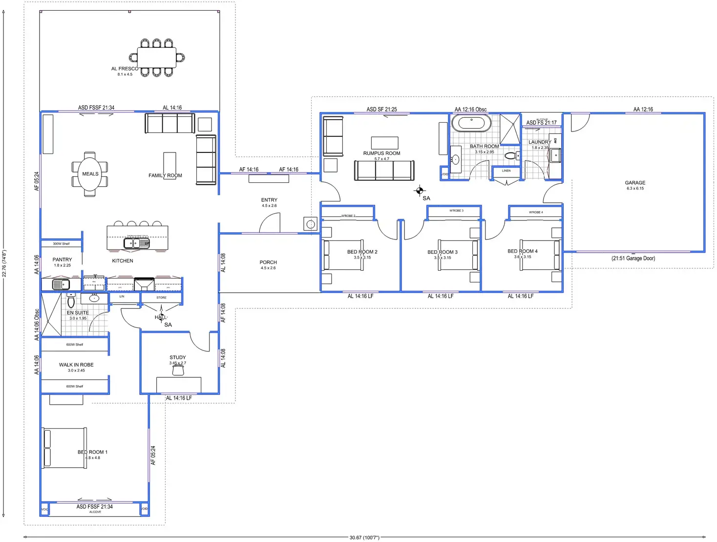
The Brighton

Relaxed family living

A large and spacious contemporary home with dedicated separation of living, sleeping and work areas. It is designed for a relaxed living environment and would suit a larger allotment with a strong connection to its surroundings.

 

4 Bedrooms

Under Roof Area 381.8m²

Ceiling Height 2.7mm

Roof Pitch 25º°

$295,240 Standard Price
Including GST